EN
首页
全屋智能家居
智能开关
智能旋钮
超级魔轮
智能中控屏
智能影音
智能安防
智能遮阳
智能感应器
智能照明
天花射灯
导轨灯
地脚灯
户外照明
线性照明
驱动电源
智能装饰照明
装饰照明
手提氛围灯
品牌活动
设计师登山节
清美研学
广州设计周
设计游学
设计师项目赋能
校企合作
社会公益
经销商私享会
设计师互动
联系我们
品牌介绍
新闻动态
精品案例
视频中心
招商加盟
营销网点
下载中心
AI数字工具
三峰AI设计智库
三峰顶峰荟
三峰云仓
导航已经绑定好数据源,在面板上选择导航分类即可。如需改导航样式,可通过CSS代码模式修改;如需重新绑定数据源,需要进入代码模式搜索【.vpHide:not([nd_deleted])】注释掉。
酒店
商业
家居
博物馆
食品与超市
餐饮
Release time:2024-11-27
上一个
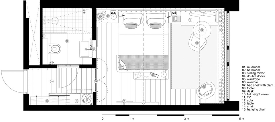
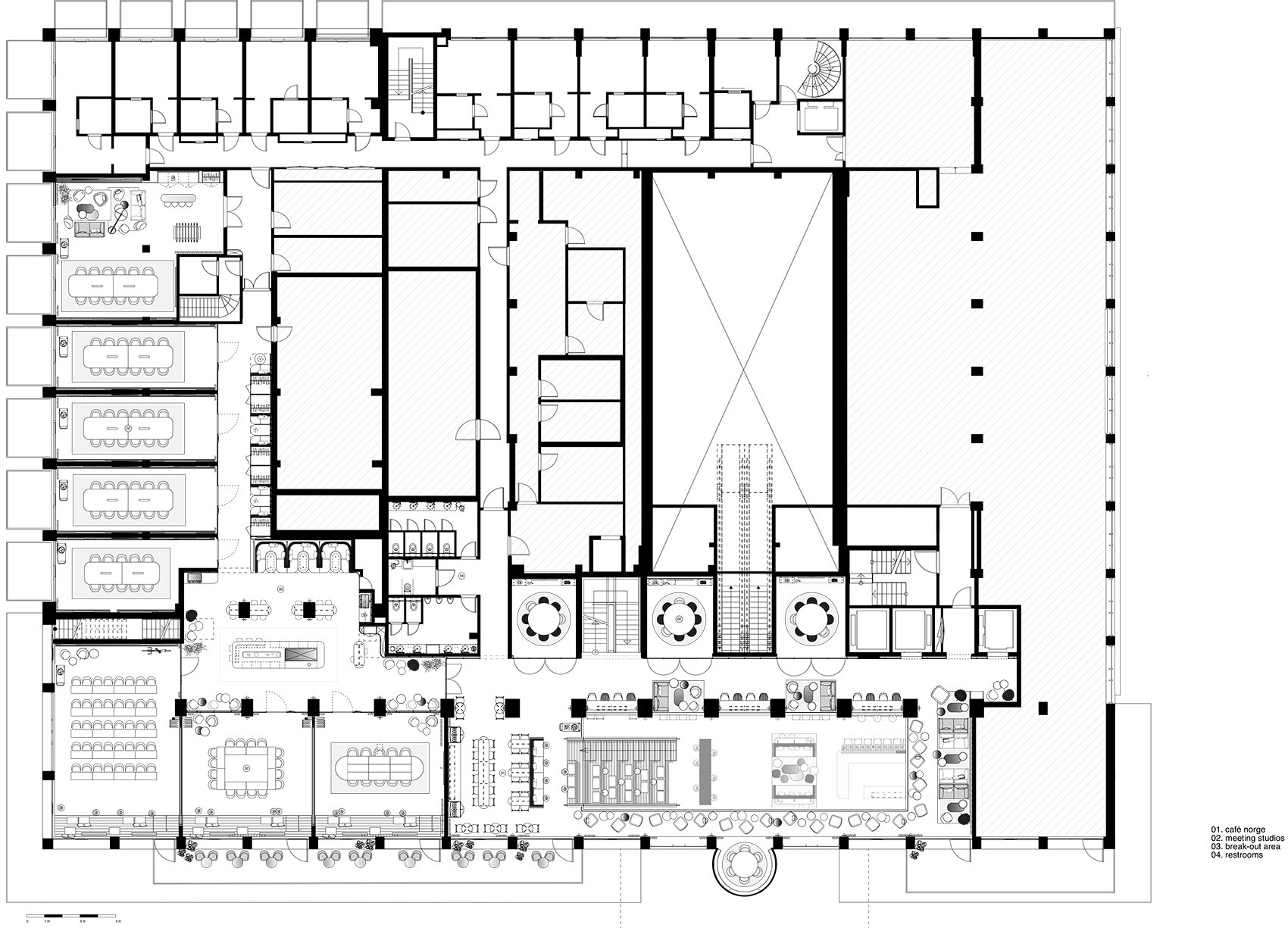
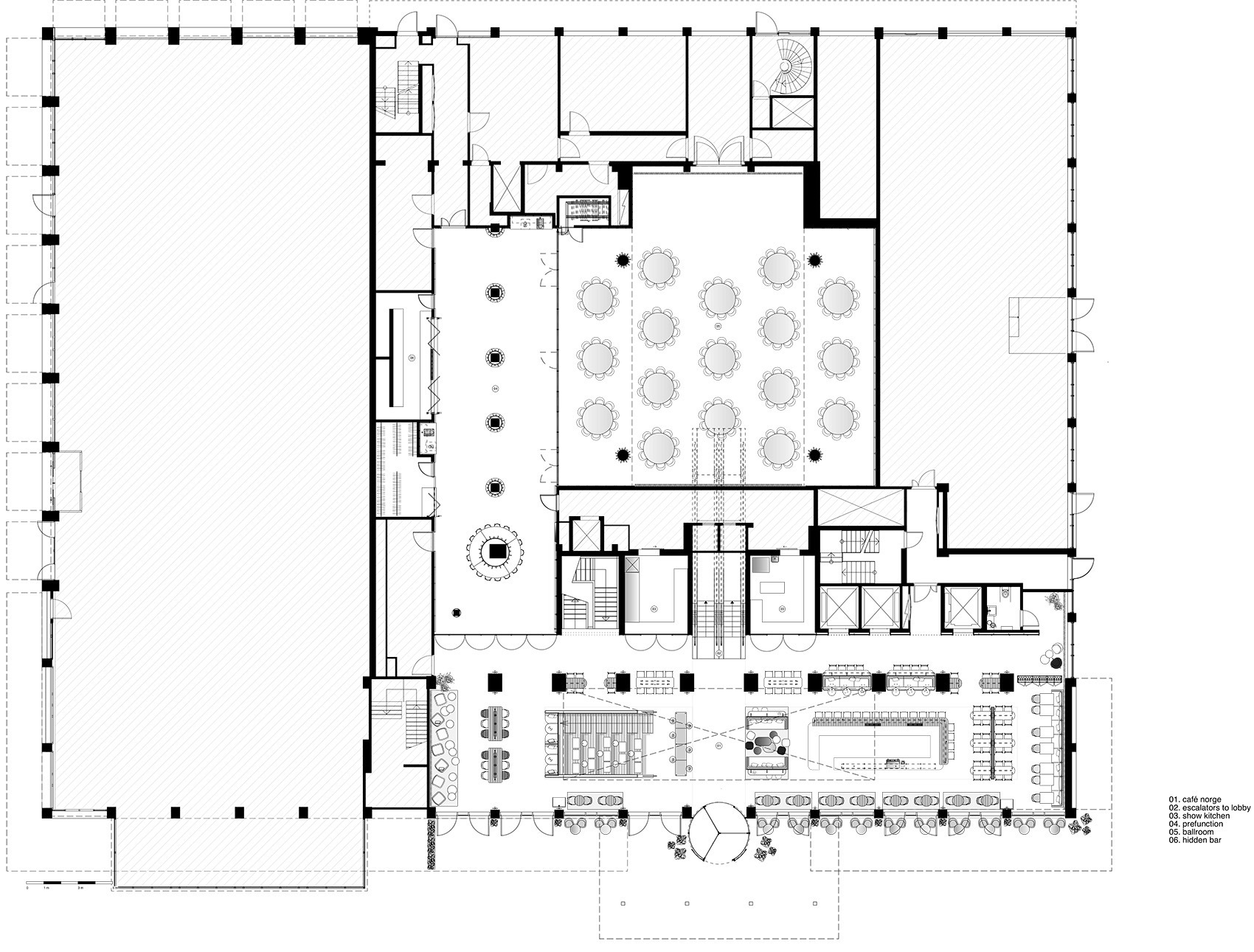
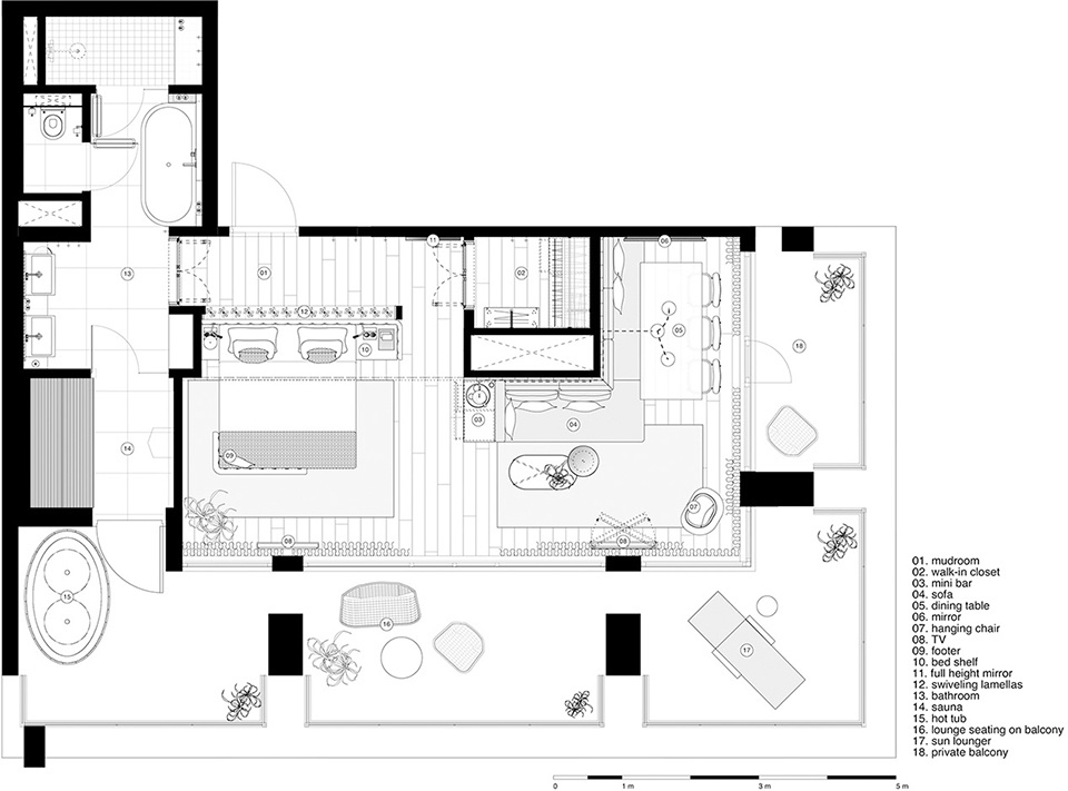
平面层 | 千设计 · 姜婉静 · 初梦
宁波中安四季庭院,中国
下一个
相关应用
奢华住宅案例:百子湾家园
这里是占位文字
安徽绩溪-若茵民宿
成都-阿凯缇亚雪山庄园酒店
从化-希尔顿酒店
阳朔-发呆悬空轻奢极景酒店
阳朔-洲际VOCO酒店